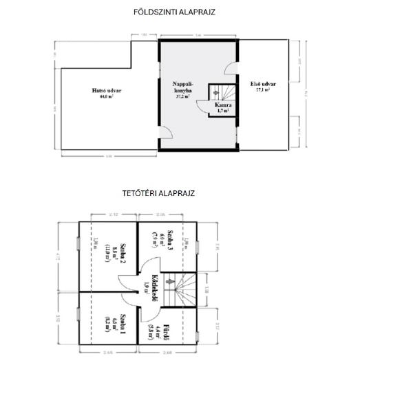
Területe 716 m2. Kivett 2 lakóház, udvar. A végrehajtás alá vont ingatlanban adós 2/10 tulajdoni illetőséggel rendelkezik, amely ingatlanrész - a tulajdonostársak között létrejött használati megállapodásban foglaltak szerint - egy önálló bejárattal rendelkező sorházi lakás. E lakás megjelölése a használati megállapodás mellékletét képező vázlatrajzon a 3. számú (középső) lakás. Közművesítettsége: vezetékes víz - gáz - villany - csatorna. A lakóépület tetőteres, alapterülete 76 m2. Alapozása beton, falazata tégla, szigetelése teljes értékű, tetőszerkezete fa és cserép. A földszinten nappali-étkező-konyha, valamint kamra, az emeleten három szoba, valamint fürdőszoba és közlekedő helyezkedik el. Adós nyilatkozata alapján ingatlan leírása: Az ingatlan Üllő belterület 2102/1. hrsz-ú, "kivett 2 lakóház, udvar" ingatlan-nyilvántartási megjelölésű, 716 m2 alapterületű ingatlan része. Jelen árverés tárgyát képező ingatlan egy egymástól teljesen független 3 lakóegységből álló sorházas épület középső lakása, ahol az ingatlanok használatáról ügyvéd által ellenjegyzett használati megosztási szerződés rendelkezik. Az árverés tárgyát képező ingatlan összközműves: víz-, gáz-, villany- és csatornaszolgáltatással és saját mérőórákkal rendelkezik, kialakítása: nappali-étkező-konyha+ 3 hálószoba. Építés éve: 2007, szintek: földszint, tetőtér, sorházi lakás, alapozás: sávalap, téglaépítésű, vasbeton födém, tető formája: nyeregtető, Tető szerkezete, fedése: Fa tetőszerkezet beton cseréppel, a külső homlokzat 10 cm-es hőszigeteléssel van ellátva, műanyag nyílászárók. Földszinti helyiségek: Nappali-konyha (37,2 m2), Kamra (1,7 m2), Lépcsőtér (2,52 m2). Tetőtéri helyiségek (hasznos terület m2): Fürdő (4,45 m2), Szoba 1 (6,57 m2), Szoba 2 (8,8 m2), Szoba 3 (6,05 m2), Közlekedő (1,86 m2)
| Kikiáltási ár | 51800000 |
|---|---|
| Minimum ár | 46620000 |
| Aktuális ár | |
| Licit lépcső | 518000 |
| Árverési előleg | 5180000 |
| Licitálók száma | 0 |
| Licitek száma | 0 |
| Árverés kezdete | 2026-03-05 00:00 |
| Árverés vége | 2026-05-04 18:00 |
| Lejáratig hátralévő idő | 60 nap 10 óra 27 perc |
| Végrehajtási ügyszám | 725.V.1302/2025/52 |
| Árverés azonosító | 922028 |
| Tulajdoni hányad | 2/10 (20%) |
| Beköltözhető | Igen |
| Sikeres árverés esetén sem törölhető jogok | közérdekű használati jog |
| Sikeres árverés esetén sem köteles kiköltözni | nincs ilyen személy |
| Cím | 2225 Üllő, Mikszáth Kálmán utca 38. |
| Megye | Pest |
| Település | Üllő |
| Helyrajzi szám | 2102/1 |
| Besorolás | lakóépület |
| Fekvés | belterület |
| Művelési ág | nincs |
| Bejegyzett földhasználat | földhasználati jogcím nincs |
| Épület típusok | lakóház |
| Jogi jelleg | nincs |
| Feldolgozva | 2026-03-05 04:07:11 |
| Még nem érkezett licit az ingatlanra |
|---|
Az ingatlanra licitálni a Magyar Bírósági Végrehajtói Kar oldalán lehetséges, személyes, végrehajtónál történő regisztráció után. Amennyiben érdekli ez a hirdetmény, a végrehajtási ügyszámra keresve megtalálhatja az MBVK oldalán az elektronikus ingatlan árverések között.
Amennyiben hibás hírdetményt talál, vegye fel a kapcsolatot velünk és eltávolítjuk azt. Az MBVK adatbázisából történő törléshez vegye fel a kapcsolatot az MBVK-val.